#051
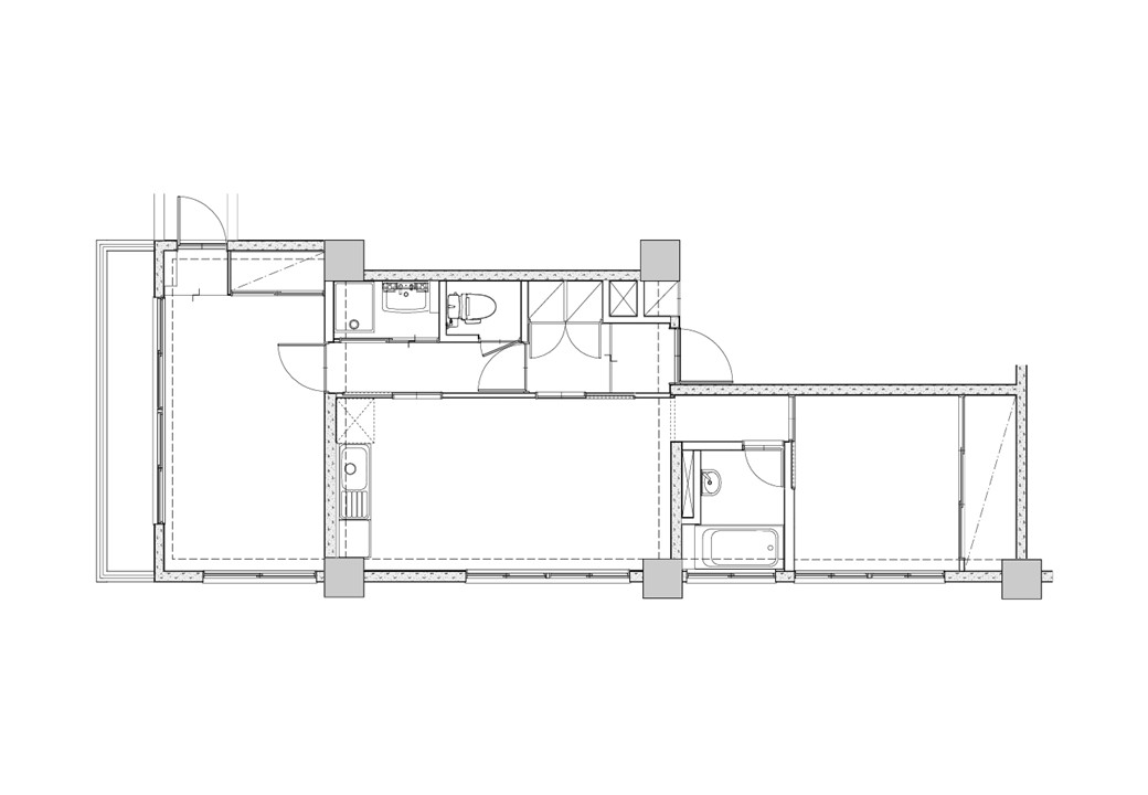
築約50年、55㎡の住戸を現代の暮らしに適した間取りへとフルリノベーションしました。
天井高の低さや設備不足、収納不足、動線の非効率といった課題に対し、構造的制約の中で最適な設計を追求。
天井内のダクトルート変更による高さの確保、これまで存在しなかった洗面脱衣所の新設、大容量収納の確保、
そして廊下の見直しによる開放的な空間構成へ。
限られた面積の中でも「広く・使いやすく・現代的に」感じられる住まいへと再生しました。
今回のリフォームで工夫したポイント
① 天井高の最大化 ― ダクトルート変更による空間改善
既存住戸は天井高が低く、圧迫感のある空間が課題でした。
その大きな要因となっていたのが、天井内を通る換気ダクトのルートです。
今回の改修では、ダクトの通り道を見直し、ルートを変更。
梁や構造体との干渉を避けながら再配置することで、天井を可能な限り上げる設計としました。
設備機能を維持しながら高さを確保することで、
・視覚的な広がり
・圧迫感の軽減
・居住快適性の向上
を実現しています。
② 洗面台・脱衣所の新設 ― 生活動線の大幅改善
もともと本住戸には洗面脱衣所がなく、浴室の出入口は廊下に面しており、廊下で脱衣を行う必要がある
間取りでした。
今回のリノベーションでは、間取りを再構築し、独立した洗面脱衣所を新たに確保。洗面台も設置しました。
これにより
・プライバシーの確保
・入浴動線の改善
・生活のしやすさ向上
といった、現代の住まいに求められる機能を実現しています。
③ ウォークインクローゼット新設 ― 収納不足の解消
既存は小規模な収納しかなく、ファミリー利用を想定すると不足している状態でした。
そこで、主寝室の一部を活用し、ウォークインクローゼットを新設。収納量をしっかり確保することで、
居室をすっきりと使えるようにしています。
④ 廊下の見直し ― 空間のつながりを重視したプランへ
既存の間取りでは、リビング横に廊下があり、空間が分断されている印象がありました。
今回の改修では、この廊下部分を見直し、リビングと一体化させることで開放的な空間へ変更。
これにより
・視線の抜けが生まれ、広がりを感じられる
・採光が行き届きやすくなる
・空間全体に一体感が生まれる
といった効果が得られ、限られた面積をより有効に活用できる住まいとなりました。
本事例では、「天井高」「水回り」「収納」「動線」という住まいの基本性能に着目し、ひとつひとつの課題を
丁寧に解消しました。
大きな面積変更ができない中でも、設計と工夫によって空間の質を高めることは十分に可能です。
築年数の経過した物件でも、的確なプランニングにより、現代のライフスタイルに合った快適な住まいへと
再生できることを示したリノベーション事例です。
| 施工期間 | 約2ヶ月 |
|---|---|
| 施工種別 | リノベーション |
| 担当者 | 長﨑 |
| 使用した商品・材料 |
【建 材】 ・建具 LIXIL ラシッサD ラテオ(チェスナット色) 【住 設】 ・ユニットバス TOTO RWV 1317サイズ ・システムキッチン クリナップ KTシリーズ 1950サイズ ・洗面台 LIXIL エスタ ・キャビネット付き便器 LIXIL Jフィット 【内装材】 ・クロス サンゲツ:SP(SP-2570、SP-2555) ・フロアタイル サンゲツ:IS(IS-2094、IS-2030-F) |
Before

After

既存住戸は天井高が低く、圧迫感のある空間が課題でした。
その大きな要因となっていたのが、天井内を通る換気ダクトのルートです。
今回の改修では、ダクトの通り道を見直し、ルートを変更。
梁や構造体との干渉を避けながら再配置することで、
天井を可能な限り上げる設計としました。
もともと本住戸には洗面脱衣所がなく、
浴室の出入口は廊下に面しており、
廊下で脱衣を行う必要がある間取りでした。
今回のリノベーションでは、間取りを再構築し、
独立した洗面脱衣所を新たに確保。洗面台も設置しました。
既存は小規模な収納しかなく、ファミリー利用を
想定すると不足している状態でした。
そこで主寝室の一部を活用し、ウォークインクローゼットを新設。
収納量をしっかり確保することで、
居室をすっきりと使えるようにしています。
既存の間取りでは、リビング横に廊下があり、
空間が分断されている印象がありました。
今回の改修では、この廊下部分を見直し、
リビングと一体化させることで開放的な空間へ変更。
これにより限られた面積をより有効に活用できる住まいとなりました。