#044
店舗兼住居として使われていた一戸建てを、内外装共にリノベーションしました。
【外装】
屋上バルコニー・店舗看板の撤去と塗装・補修工事を実施しました。
屋上に設置されていたバルコニーは老朽化により
出入りするには危険な状態になっていました。
その為、バルコニーは撤去し、その下にあった屋根は新しく葺き替えました。
外壁はシールの打替えと外壁・鉄部等の塗装をし直しました。
【内装】
テナントとして利用することを前提としてフルリノベーションしました。
床は、耐久性が高く、汚れが掃除しやすい長尺シートを採用しました。
1Fは照明にベースライトを設置し、白を基調とした内装にしました。
床には、汚れが目立ちにくい無地調の石目柄を採用し、
スタンダードでシンプルに仕上げました。
2Fは少し温かみが出るように、木目柄の長尺シートを選定しました。
天井の梁には、床の色ともマッチする木目柄を
アクセントクロスとして施工しました。
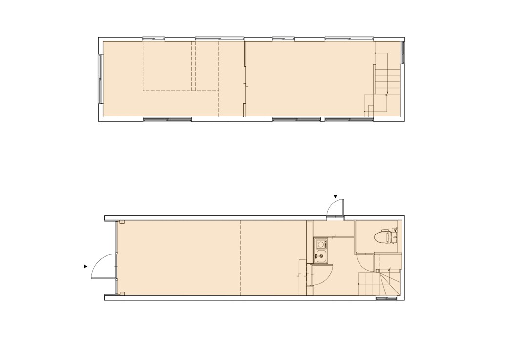
ミニキッチンはIHコンロです。電気温水器が設置されており、温水も利用出来ます。
テナントに設置されているキッチンは、水しか使えないことが多いのですが、
冬場は特に、温かい水が使えると本当に助かります。
テナントとしての使いやすさにこだわった、リノベーションが出来ました。
テナント・店舗の改修工事も承っております。
是非お気軽にご相談下さい!
| 施工期間 | 約2ヶ月 |
|---|---|
| 施工種別 | リノベーション |
| 担当者 | 長﨑 |
| 使用した商品・材料 |
【キッチン】ハウステック:KM W900 【トイレ】LIXIL:LN便器 【建材】ノダ:カナエル 【内装材】・クロス サンゲツ:SP(SP2501) ・アクセントクロス サンゲツ:SP(SP2567) ・長尺シート サンゲツ 1F:PMC-2048 2F:PMC-2011 |
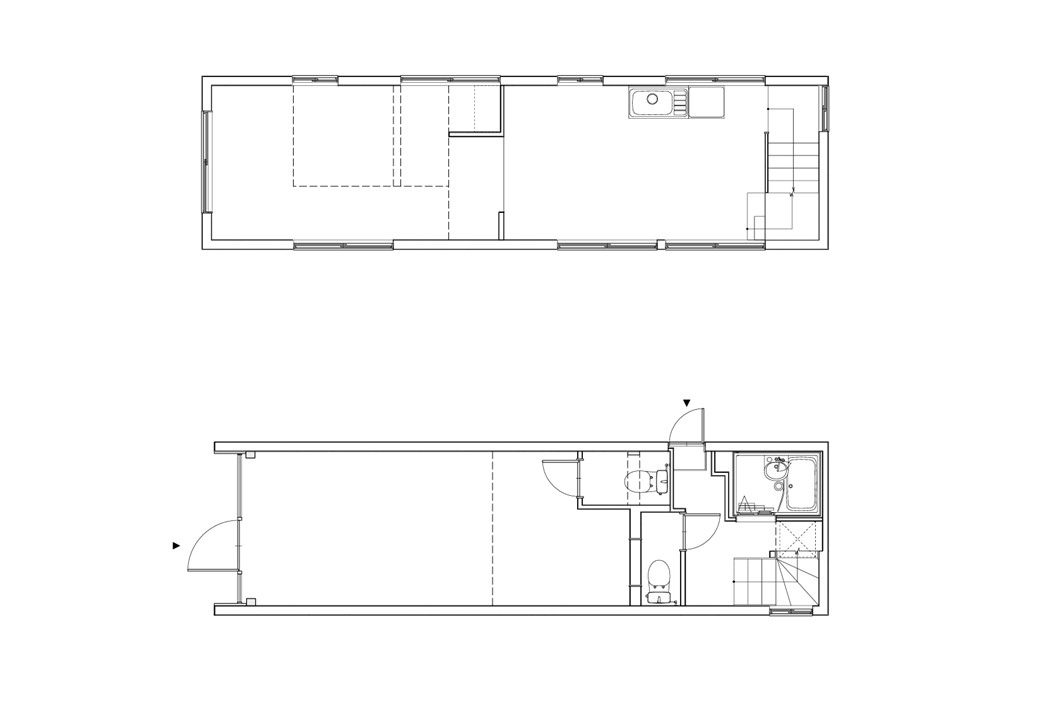
Before

After

危険なバルコニーは撤去し、屋根を葺き替えた事で
安全性も高まり、雨漏りの心配も無くなりました。
窓には安全の為、手摺も設置しました。
梁部分は木材のように見えますが、実はアクセントクロスです。
とても良いポイントとなってオシャレに仕上がりました!
ナチュラルな色合いがGOODです。
階段下の部分は塞ぐ事も出来ましたが、階段下収納にする事で
スペースを無駄なく活用する事が出来ました。
こうしたちょっとした工夫も大事なポイントです!