#050
築28年・85㎡の3LDKマンション。分譲時から一度もリフォームが行われていなかった住戸を、今回フルリノベーションしました。設備機器はすべて入れ替え、建具も一新することで、空間全体に統一感を持たせながら、現代のライフスタイルに合った住まいへと刷新しています。
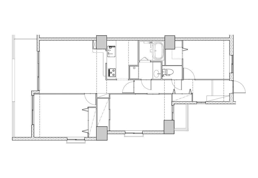
間取り面では、従来の使いづらさを解消するために各所を見直しました。特に動線や収納、設備配管など、見た目だけでなく「使いやすさ」に重点を置いた設計としています。また、施工面では床の不陸調整など見えない部分にも丁寧に対応し、今後の暮らしを支える確かな品質を実現しました。
以下に、本リフォームにおける主な工夫をご紹介します。
① 和室の洋室化
玄関からリビングへとつながる廊下沿いに配置されていた和室は、現在の生活スタイルにおいて需要が低く、使い勝手にも課題がありました。そこで畳の和室を洋室へ変更し、寝室として活用できる空間へと再構成。間取りの流れにも自然に馴染む、実用性の高い一室となりました。
② 下駄箱まわりの改善
下駄箱の設置位置にはMB(メーターボックス)があり、収納計画が難しい状況でした。そこでデッドスペースを有効活用しつつ、違和感のないデザインで再構築。見た目と使いやすさを両立した玄関収納へと改善しています。
③ キッチン配管とカウンターの工夫
もともと不自然だったキッチンの配管計画を見直し、カウンターの奥行きを拡張。配管スペースを無理なく納めながら、作業性の高いカウンターとして機能するよう設計しました。見た目の美しさと実用性を兼ね備えたキッチン空間を実現しています。
④ 床のレベル調整(今回の最大のポイント)
既存の床には最大20mmの不陸があり、新たに直貼り用フローリング(防音)の張替、引戸やクローゼットを設置するためには水平を確保する必要がありました。そこで左官工事により床の不陸調整を行い、全体のレベルを均一化。この工程は本工事の中でも特に難易度が高く、仕上がりの精度を左右する重要なポイントとなりました。
機能性・デザイン性の向上に加え、細部にわたる施工の工夫により、長く安心して暮らせる住まいへと生まれ変わりました。
| 施工期間 | 約2ヶ月半 |
|---|---|
| 施工種別 | リノベーション |
| 担当者 | 長﨑 |
| 使用した商品・材料 |
【建 材】 ・建具 LIXIL ラシッサD ラテオ(チェスナット色) 【住 設】 ・ユニットバス TOTO RWV 1317サイズ ・システムキッチン クリナップ KTシリーズ 2700サイズ ・洗面化粧台 TOTO オクターブ ・ウォシュレット一体型便器 TOTO ZR 【内装材】 ・クロス サンゲツ:SP(SP-9713、SP-9705、SP-9779) ・フロアタイル サンゲツ:IS(IS-2094、IS-2030-F) |
Before

After

畳の和室を洋室へ変更し、寝室として活用できる空間へと再構成。間取りの流れにも自然に馴染む、実用性の高い一室となりました。
デッドスペースを有効活用しつつ、違和感のないデザインで再構築。見た目と使いやすさを両立した玄関収納へと改善しています。
もともと不自然だったキッチンの配管計画を見直し、カウンターの奥行きを拡張。配管スペースを無理なく納めながら、作業性の高いカウンターとして機能するよう設計しました。
既存の床には最大20mmの不陸があり、水平を確保する必要がありました。そこで左官工事により床の不陸調整を行い、全体のレベルを均一化。
機能性・デザイン性の向上に加え、細部にわたる施工の工夫により、長く安心して暮らせる住まいへと生まれ変わりました。