#048
1980年築の物件を現代のライフスタイルに合わせてフルリフォームいたしました。
築年数相応の設備や間取りはすべて見直し、キッチン・浴室・洗面・トイレなどの設備は全面入替え。内装・配管・電気系統に至るまで一新しています。
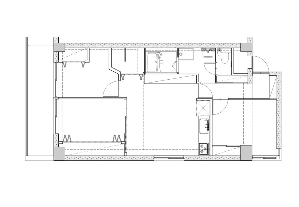
当時よく見られた細かく仕切られた間取りや、水廻りが奥まった配置になっている設計を、現在のニーズに合わせて再構築。
家族構成や生活動線を意識し、開放感と機能性を両立させた空間へと生まれ変わりました。
特に、水廻りの位置変更や天井高の確保、各居室でのエアコン設置需要への対応など、現代の住まいに求められる要素を丁寧に反映。
一方で、構造上移動が難しい梁や配管スペースなど、変更が困難な箇所については、制約の中で最大限の工夫を施しています。
築40年以上の物件であっても、設計次第でここまで快適な住空間へ再生できることを実現した事例です。
| 施工期間 | 約2ヶ月 |
|---|---|
| 施工種別 | リノベーション |
| 担当者 | 長﨑 |
| 使用した商品・材料 |
【建 材】 ・建具 LIXIL ラシッサS (クリエモカ色) 【住 設】 ・ユニットバス TOTO RWV 1317サイズ ・システムキッチン クリナップ KTシリーズ 2100サイズ ・洗面化粧台 LIXIL EV ・キャビネット付き便器 LIXIL Jフィット 【内装材】 ・クロス サンゲツ:SP(SP-2570、SP-2555) ・フロアタイル サンゲツ:IS(IS-2094、IS-2030) |
Before

After

既存の間取りでは、水廻りが独立性を優先した配置となっており、生活動線が分断されていました。
今回の改修では、キッチン・洗面・浴室の位置関係を見直し、回遊性のある動線へ再構築。限られた専有面積の中でも無駄な移動を減らし、日常の使いやすさを向上させました。
キッチン・ユニットバス・洗面化粧台・トイレなどの設備はすべて最新機器へ入替え。
見えない部分である給水・給湯配管・電気配線も更新し、将来的なメンテナンス性も考慮した配管ルートへ変更しました。
築年数の経過した物件では特に重要となるインフラ部分まで手を入れることで、安心して長く住める住環境を整えています。
既存の天井は解体し、下地から再構築しました。
ダウンライト設置に必要な最小限の懐寸法を確保しつつ、天井高さを可能な限り上げる設計としています。
さらに、従来のダクトルートでは天井高を圧迫してしまうため、ダクトの通り道を再検討し、ルートを変更。
梁や構造躯体を避けながらも効率的な経路を確保することで、圧迫感のない空間を実現しました。
築年数の古い物件では、天井内スペースに余裕がないことが多く、設備更新と天井高の両立は難易度が高い工事です。
今回は設備機能と開放感を両立させることに成功しています。
既存計画では、一部洋室に室外機置場の確保が困難な部屋がありました。
仮に室外機を設置すると、将来的なメンテナンスや交換作業ができなくなる恐れがある配置でした。
そこで、配管ルートを再設計し、室外機をバルコニーへ設置できるように計画変更。
壁内・天井内のスペースを有効活用し、ドレン排水や冷媒管の勾配も確保しながら、外観・メンテナンス性・機能性のすべてを満たす施工としました。
これにより、
・全居室エアコン設置可能
・将来の交換・修理対応が容易
・室内スペースを圧迫しない
という、現代のニーズに合った住環境を実現しています。