#049
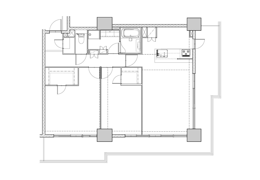
85㎡・2LDKだった住戸を、現代のニーズに合わせて3LDKへ間取り変更。
単なる部屋数の増加にとどまらず、玄関の印象設計、素材選びによる空間の質向上、そして開放的なアイランドキッチンの導入により、機能性とデザイン性を両立させた住まいへと再生しました。
“数を増やす”“見た目を整える”だけではなく、空間のつながり・素材感・奥行きの演出まで計算したリノベーション事例です。
★今回のリフォームで工夫したポイント★
① 2LDKから3LDKへ ― 需要を見据えた間取り変更
85㎡という広さを活かし、既存の2LDKから洋室3室の3LDKへ変更しました。
近年はリモートワークや子ども部屋需要の高まりにより、「部屋数」を重視する傾向が強まっています。
単純に壁を増やすのではなく、
・各居室の採光
・エアコン設置可否
・家具配置のしやすさ
まで考慮し、実用性のある3LDKへ再構築しました。
② 玄関デザインの刷新 ― 素材で魅せる空間演出
住まいの第一印象となる玄関は、意匠性を高めて再設計しました。
・壁面にエコカラットを採用
調湿・消臭機能を持ちながら、上質な質感で高級感を演出。
・姿見(全身ミラー)を設置
空間を広く見せる効果と実用性を両立。
・正面にニッチを設け、視線の抜けと演出性を確保
さらに、もともと廊下の一部に石貼りが施されていましたが、
廊下床はあえて居室と同じフローリングに変更。
これにより
✔ 玄関タイルとの境界が明確になり
✔ タイルの存在感が強調され
✔ エコカラットの質感がより際立つ
結果として、奥行きとメリハリのある空間に仕上がりました。
“引き算”によって玄関を主役にした設計です。
③ リビングの一部に布クロスを採用 ― 素材感のある空間へ
一般的に使用されるビニールクロスではなく、一部壁面に布クロスを採用しました。
布クロスは
・柔らかな質感
・光の陰影による表情
・温かみのある印象
といった特徴があり、空間全体に上質さを与えます。
視覚的なアクセントであると同時に、
“触感を想像させる素材”として、ワンランク上のリビング空間を演出しています。
④ アイランドキッチン導入 ― 開放感と回遊性の確保
閉鎖的だったキッチンを、今需要の高いアイランドキッチンへ変更。
壁付け型からオープン型へと転換することで、
・リビングとの一体感
・家族とのコミュニケーション性
・回遊動線
を確保しました。
視界を遮らない設計により、85㎡の広さをより体感できる空間へ。
デザイン性と機能性を兼ね備えた、現代的なLDKへと生まれ変わっています。
| 施工期間 | 約3ヶ月 |
|---|---|
| 施工種別 | リノベーション |
| 担当者 | 長﨑 |
| 使用した商品・材料 |
【建 材】 ・建具 DAIKEN イエリア 【住 設】 ・ユニットバス TOTO RWV 1418サイズ ・システムキッチン クリナップ ラクエラ 2740サイズ(扉カラー:ズラチナオーク) ・洗面化粧台 LIXIL ルミシス ・キャビネット付き便器 LIXIL Jフィット 【内装材】 ・クロス サンゲツ:SP(SP-2554、SP-2577) ・布クロス サンゲツ:SP(SGM-1370) |
Before

After

85㎡という広さを活かし、既存の2LDKから洋室3室の3LDKへ変更しました。
近年はリモートワークや子ども部屋需要の高まりにより、「部屋数」を重視する傾向が強まっています。
住まいの第一印象となる玄関は、意匠性を高めて再設計しました。
さらに、もともと廊下の一部に石貼りが施されていましたが、
廊下床はあえて居室と同じフローリングに変更。
結果として、奥行きとメリハリのある空間に仕上がりました。
一般的に使用されるビニールクロスではなく、一部壁面に布クロスを採用しました。
視覚的なアクセントであると同時に、“触感を想像させる素材”として、ワンランク上のリビング空間を演出しています。
閉鎖的だったキッチンを、今需要の高いアイランドキッチンへ変更。
視界を遮らない設計により、広さをより体感できる空間へ。
デザイン性と機能性を兼ね備えた、現代的なLDKへと生まれ変わっています。