#045
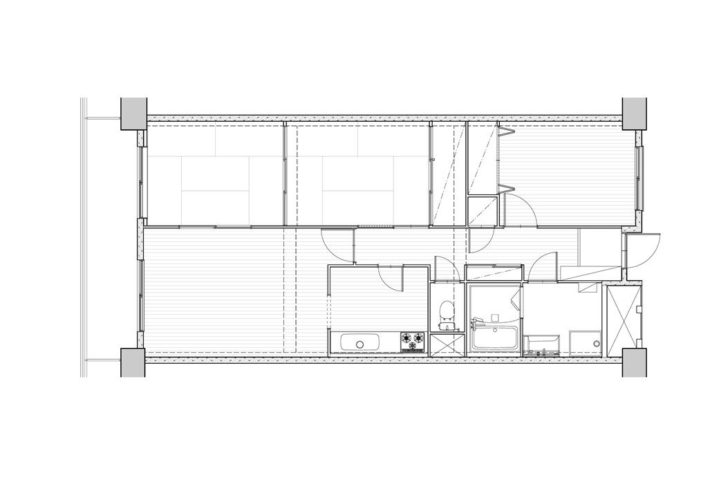
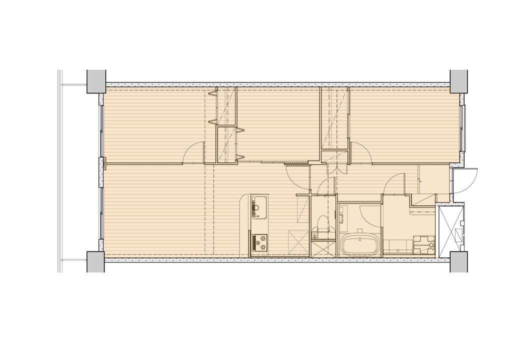
築43年、SRC造マンションのフルリノベーション事例をご紹介します。
【洋室】
元々は、和室2室と洋室1室の間取でした。
今回のリフォームで、全て洋室に変更しました。
玄関側の洋室にある収納は、幅が2115mm、奥行きが900mmあり
シングルベッド並みのサイズで大容量収納となっています。
【キッチン】
キッチンは独立したキッチンスペースでしたが、
カウンター付きの対面キッチンに変更しました。
コンロの前に壁を設け、ニオイや汚れが広がらないようにし
シンク側はオープンにしてリビングが見渡せる設計にしました。
食洗器や浄水器付きの水栓など機能面でも充実した造りです。
【玄関・廊下】
窓が無く、暗くなりがちな廊下ですが、リビングに続く扉を
ガラス入りのデザインにする事で採光を確保しました。
ちょっとしたスペースを無駄にする事なく、収納やニッチを
設ける事で、使い勝手を良くしています。
また、収納内にコンセントを設置したので、充電スペースと
しても活用できるようにしました。
【トイレ】
タンクレス風に見える背面キャビネット型のトイレです。
タンクが見えない分スッキリとした形状で
お掃除がしやすくなります。
人感センサーでフタが自動で開くなど、最新の機能で
快適に使用出来るようにしました。
【洗面脱衣室・浴室】
細々とした物が増えがちな洗面脱衣室には、可動式収納を
各所に設置しました。
棚板の高さを自在に変えられる為、ジャストフィットの
収納に出来ます。
バスタオルを掛けられるタオルハンガーも設置しました。
浴室は換気乾燥暖房機付きで一年中快適に入浴出来ます。
機能面・使い勝手・住みやすさにこだわったリフォームは
是非当社にお任せください。
「お見積・お問い合わせ」フォームからお気軽にご相談ください!
| 施工期間 | 約2ヶ月 |
|---|---|
| 施工種別 | リノベーション |
| 担当者 | 長﨑 |
| 使用した商品・材料 |
【建 材】 ・建具 LIXIL ラシッサD ラテオ(チェスナット色) 【住 設】 ・ユニットバス TOTO RWV 1418サイズ ・システムキッチン クリナップ KTシリーズ 2100サイズ ・洗面化粧台 LIXIL EV ・キャビネット付き便器 LIXIL Jフィット 【内装材】 ・クロス サンゲツ:SP(SP-9750、SP-9761) ・フロアタイル サンゲツ:IS(IS-2094、IS-2030) |
Before

After

建具・床・キッチンには落ち着いた木目柄を採用しました。
ナチュラルな木目柄は様々な年代の方に人気があり、
どのインテリアにもマッチします。
フローリングのミドルブラウン色は汚れが目立ちにくく
暗くなりすぎない丁度良い明るさです。
高さが約2mあり、40~50足は収納出来る
シューズボックスです。
棚板は樹脂製なので洗ってお手入れも出来ます。
扉はミラーになっている為、出掛ける前に
身だしなみの確認が出来ます。
3枚の棚板とタオル掛けがお好きな場所に設置出来ます。
棚板の角が丸く加工されている為、ぶつかっても痛くない
優しい設計です♡